Home
Bio
Contact
KerfCase
Film+Video
Float Documentary
Journal
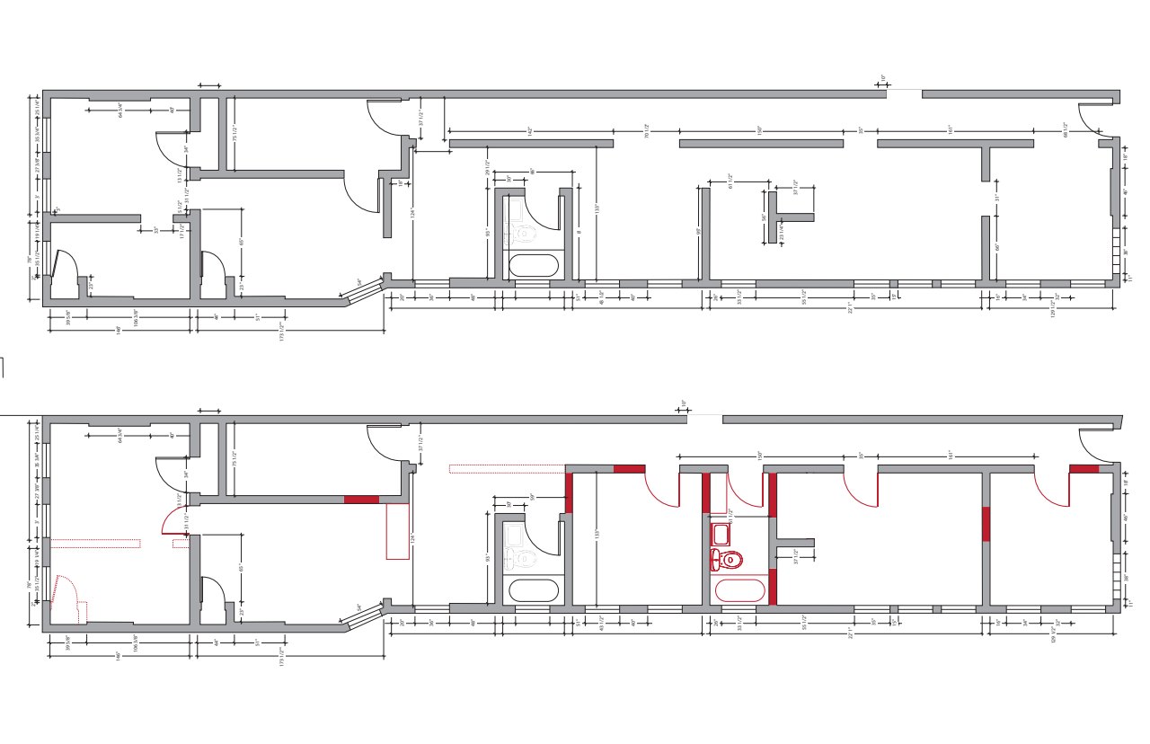
5125 Penn
Previous
Craft
Next
Vanish